【間取り】桧家住宅施工のZ空調搭載のオール電化住宅♪
- 建物面積
- 116.75㎡
- 築年月
- 2019年4月(築6年)
-
カウンターキッチン
-
浴室乾燥機
- 販売戸数
- -
- 総戸数
- -
- 間取り / 詳細
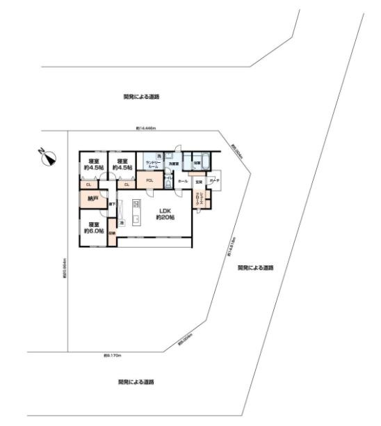
- 3LDK
LDK 1室/洋室 1室/洋室 1室/洋室 1室 - 向き
- -
- 建物面積(坪数)
- 116.75㎡(35.31坪)
- 土地面積(坪数)
- 320.18㎡(96.85坪)
- 建ぺい率 /
容積率 - 60%/200%
- 築年月
- 2019年4月(築6年)
- 駐車場 /
月額料金 - 有(4台) 0円
- 土地権利
- 所有権
- 土地
(敷金 / 保証金) - - / -
- 建物構造
- 木造 / 2階建
- 傾斜地部分面積
- -
- 路地状敷地
- -
- 私道負担面積
- -
- セットバック
- 無
- 高圧線下面積
- -
- 施工会社
- -
- 用途地域
- 無指定
- 地目 / 地勢
- 宅地 / -
- 接道状況
- 一方(北東 公道 6.0m)
- 国土法届出要否
- 不要
- 都市計画
- 市街化調整区域
- 総区画数 /
販売区画数 - -/-
- 現況
- 空家
- その他
法令上の制限 - -
- 取引態様
- 仲介
- 引渡し
- 即時
- 取引条件の
有効期限 - 2025年12月19日
- 設備条件
-
- プロパンガス / 公営水道 / 浄化槽排水 / オール電化 / 24時間換気システム / 照明器具付き / 食器洗い乾燥機 / システムキッチン / カウンターキッチン / 浴室乾燥機 / トイレ2ヶ所 / ウォークインクロゼット / 屋根裏収納 / 収納豊富
- 設備(その他)
-
-
-
- 物件番号
- 99487980
- 管理コード
- -
- 建築確認番号
- -
- 情報更新日
- 2025年12月05日
- 次回更新予定日
- 2025年12月19日
- 備考
- 当社へご相談頂きますと、構造の耐震性や地盤の良し悪し、冠水の有無など、様々なことを比較しながら物件探しを進めることができます。ご不安を一つずつ解消しながら、夢のマイホーム!を実現しましょう! 強引な営業は一切おこないません!安心してお問い合わせくださいませ。
大きなお買い物です。未来を考えたマイホーム探しを、スタッフ全員でサポートさせて頂きます。 これまでご購入頂いたお客様は、『子供が成長するにつれて』や『ずっとアパート代を払うのはもったいない』など色々な動機をお持ちでした。そして、ほとんどの方々が初めての住宅探しでした。お客様にご納得いくまで、スタッフ一丸となりお手伝いさせて頂き、お引渡しが終わったお客様とは現在もとても仲良くして頂いております。当社スタッフは明るく、気さくに話せるとお褒め頂いております!!明るく楽しみながらマイホーム探しが出来ますよ♪ 家庭を持っている営業スタッフも多く、パパママ世代に寄り添ってご提案させて頂きます。すでにマイホームを持っているスタッフの経験談なども参考にしてみては如何でしょうか?。。
住宅ローンは低金利の今が狙い目です。住宅ローン取扱件数も地域No1!!銀行様からの信頼も厚く、住宅ローン金利はどこよりもお安く実現できます! 『良い点、悪い点を一緒に考えてくれて、とても信頼できました』 ご購入頂いたお客様からのお言葉です。誠に有難い限りです。。 マイホーム購入は、どなたも不安です。当社の仕事は、お客様のご不安を解消しながら、ご家族が幸せになれるマイホーム探しのお手伝いをすることです。 物件の情報はもちろんですが、お時間がございましたら『お客様の声』もご覧くださいませ。 一生に一度の大きな買い物を『ひだまりハウス』にお任せいただきましたお客様からの温かいお言葉から、今後ご購入を控えていらっしゃる方へのアドバイスまで掲載されております。 物件のご案内から、住宅ローンの取扱い、地盤の良し悪しやお引渡し後のアフターフォローまで、全て解決させていただける『ひだまりハウス』。皆様にお会いできることをスタッフ一同楽しみにしております!! -
保育園
鷲宮保育園
920m(12分)
-
幼稚園
桜田幼稚園(学校法人)
1299m(17分)
-
小学校
久喜市立砂原小学校
850m(11分)
-
中学校
久喜市立鷲宮中学校
450m(6分)
-
寿司
かっぱ寿司久喜店
1342m(17分)
-
ファミリーレストラン
ガスト 鷲宮店(から好し取扱店)
1248m(16分)
-
公園
美津児公園
876m(11分)
-
スーパー
(株)カスミ 鷲宮店
1000m(13分)
-
スーパー
ジョイフーズ 鷲宮店
1352m(17分)
-
コンビニエンスストア
ファミリーマート 鷲宮上新井店
350m(5分)
-
コンビニエンスストア
ローソン 久喜鷲宮平野店
591m(8分)
-
コンビニエンスストア
セブンイレブン久喜東鷲宮店
957m(12分)
-
ドラッグストア
ドラッグストアセキ 鷲宮西店
1300m(17分)
-
総合病院
朝比奈医院
978m(13分)
-
眼科
久喜かわしま眼科
1642m(21分)
-
歯科
はすみ歯科医院
620m(8分)
-
銀行
埼玉みずほ農協鷲宮支店
1185m(15分)
-
郵便局
鷲宮上内郵便局
992m(13分)
-
市役所・区役所
久喜市役所鷲宮総合支所
1330m(17分)
-
駅
鷲宮駅 東口
1300m(17分)
- 月々の支払額
- 9.6円
- 購入希望物件価格
-
万円
- 頭金
-
万円
- 金利
-
%
- 返済額(ボーナス1回分)
-
万円
- 返済期間
-
年
物件の特徴
セールスポイント
桧家住宅施工のZ空調搭載のオール電化住宅♪
■久喜市の物件探しは、丁寧、迅速対応のひだまりハウスへお任せください!新規物件の情報をイチ早くご紹介できます! 家の中で子供が『走る、騒ぐ、ジャンプする』。 ご近所迷惑にならないよう怒って我慢させるのはご両親も心苦しいもの。この際一戸建てに引っ越して自由にさせてみるのも一つの手。窮屈な思いをさせず、のびのびとした環境で成長を見守りましょう!
ポイント
久喜市上内 中古一戸建て JR宇都宮線 東鷲宮駅 鷲宮中学校 砂原中学校
担当者のコメント
基本情報
設備条件
その他
久喜市上内 中古一戸建ての他の物件
周辺施設
支払いシミュレーション
※ボーナスは自動で年2回分で計算されます。
近隣の物件
久喜市上内 中古一戸建て
4,150万円
-
3LDK(116.75㎡)






前畑 寿幸
SIC付きで散らかりがちな玄関もスッキリ片付きます♪
リビングイン階段で家族と顔を合わせる機会が増えますね♪
広々お庭や駐車スペースは4台分と来客時も安心のスペースです♪
【ひだまりハウス 久喜支店】
ヤシの木が目印の店舗♪「地元密着」の不動産屋さんです。
近隣市町村すべての物件がまとめてご見学いただけます!
資料請求や住宅ローン相談だけでも大歓迎です。
お問い合わせは【フリーダイヤル: 0120-888-290】までお気軽にどうぞ♪