【間取り】自然光を取り込みやすい陽当たり良好な明るい住まい♪
- 価格
- 2,750万円
- 間取り
- 4LDK
- 土地面積
- 259.43㎡
- 建物面積
- 98.53㎡
- 築年月
- 2021年8月(築4年)
-
TVモニタ付きインターホン
-
カウンターキッチン
-
浴室乾燥機
- 販売戸数
- -
- 総戸数
- -
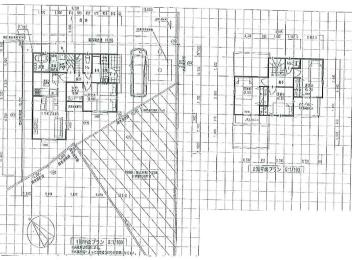
- 間取り / 詳細
- 4LDK
LDK 14.0帖 1室/洋室 6.0帖 1室/洋室 4.5帖 1室/洋室 5.7帖 1室/洋室 6.5帖 1室 - 向き
- -
- 建物面積(坪数)
- 98.53㎡(29.8坪)
- 土地面積(坪数)
- 259.43㎡(78.47坪)
- 建ぺい率 /
容積率 - 60%/200%
- 築年月
- 2021年8月(築4年)
- 駐車場 /
月額料金 - 有(2台) 0円
- 土地権利
- 所有権
- 土地
(敷金 / 保証金) - - / -
- 建物構造
- 木造 / 2階建
- 傾斜地部分面積
- -
- 路地状敷地
- -
- 私道負担面積
- -
- セットバック
- 済 記載なし
- 高圧線下面積
- -
- 施工会社
- -
- 用途地域
- 第二種中高層住居専用
- 地目 / 地勢
- 宅地 / -
- 接道状況
- 一方(北東 公道 6.0m 間口 16.8m)
- 国土法届出要否
- 不要
- 都市計画
- 市街化区域
- 総区画数 /
販売区画数 - -/-
- 現況
- 居住中
- その他
法令上の制限 - -
- 取引態様
- 仲介
- 引渡し
- 相談
- 取引条件の
有効期限 - 2026年05月03日
- 設備条件
-
- 陽当り良好 / 建設住宅性能評価書付 / プロパンガス / 公営水道 / 公共下水 / 照明器具付き / 駐車2台可 / コンロ2口以上 / 食器洗い乾燥機 / カウンターキッチン / コンロ3口 / 追焚機能浴室 / 浴室乾燥機 / 温水洗浄便座 / トイレ2ヶ所 / エアコン / 床下収納 / ウォークインクロゼット / 収納豊富 / TVモニタ付インターホン
- 設備(その他)
-
-
-
- 物件番号
- 102837904
- 管理コード
- -
- 建築確認番号
- -
- 情報更新日
- 2026年04月19日
- 次回更新予定日
- 2026年05月03日
- 備考
- 当社へご相談頂きますと、構造の耐震性や地盤の良し悪し、冠水の有無など、様々なことを比較しながら物件探しを進めることができます。ご不安を一つずつ解消しながら、夢のマイホーム!を実現しましょう! 強引な営業は一切おこないません!安心してお問い合わせくださいませ。
大きなお買い物です。未来を考えたマイホーム探しを、スタッフ全員でサポートさせて頂きます。 これまでご購入頂いたお客様は、『子供が成長するにつれて』や『ずっとアパート代を払うのはもったいない』など色々な動機をお持ちでした。そして、ほとんどの方々が初めての住宅探しでした。お客様にご納得いくまで、スタッフ一丸となりお手伝いさせて頂き、お引渡しが終わったお客様とは現在もとても仲良くして頂いております。当社スタッフは明るく、気さくに話せるとお褒め頂いております!!明るく楽しみながらマイホーム探しが出来ますよ♪ 家庭を持っている営業スタッフも多く、パパママ世代に寄り添ってご提案させて頂きます。すでにマイホームを持っているスタッフの経験談なども参考にしてみては如何でしょうか?。。
住宅ローンは低金利の今が狙い目です。住宅ローン取扱件数も地域No1!!銀行様からの信頼も厚く、住宅ローン金利はどこよりもお安く実現できます! 『良い点、悪い点を一緒に考えてくれて、とても信頼できました』 ご購入頂いたお客様からのお言葉です。誠に有難い限りです。。 マイホーム購入は、どなたも不安です。当社の仕事は、お客様のご不安を解消しながら、ご家族が幸せになれるマイホーム探しのお手伝いをすることです。 物件の情報はもちろんですが、お時間がございましたら『お客様の声』もご覧くださいませ。 一生に一度の大きな買い物を『ひだまりハウス』にお任せいただきましたお客様からの温かいお言葉から、今後ご購入を控えていらっしゃる方へのアドバイスまで掲載されております。 物件のご案内から、住宅ローンの取扱い、地盤の良し悪しやお引渡し後のアフターフォローまで、全て解決させていただける『ひだまりハウス』。皆様にお会いできることをスタッフ一同楽しみにしております!! -
幼稚園
杉戸町立中央幼稚園
405m(6分)
-
保育園
内田保育園
455m(6分)
-
小学校
杉戸町立杉戸小学校
730m(10分)
-
中学校
杉戸町立杉戸中学校
795m(10分)
-
ファミリーレストラン
サイゼリヤ 杉戸店
867m(11分)
-
焼肉
焼肉きんぐ杉戸店
1122m(15分)
-
公園
みやしろ中央公園
1675m(21分)
-
スーパー
カスミ 杉戸店
1194m(15分)
-
スーパー
ジョイフーズ杉戸清地店
1633m(21分)
-
コンビニエンスストア
セブンイレブン 杉戸内田4丁目店
619m(8分)
-
コンビニエンスストア
ポプラ アスカスクウェア杉戸店
856m(11分)
-
ドラッグストア
ウエルシア 杉戸倉松店
1069m(14分)
-
ドラッグストア
クスリのアオキ 宮代店
1735m(22分)
-
総合病院
東埼玉総合病院附属清地クリニック
1626m(21分)
-
眼科
いわたけ眼科
1530m(20分)
-
歯科
みるく歯科クリニック
716m(9分)
-
銀行
埼玉りそな銀行 杉戸支店
1342m(17分)
-
郵便局
杉戸郵便局集荷
627m(8分)
-
市役所・区役所
杉戸町役場
1851m(24分)
-
駅
東武動物公園
1760m(22分)
- 月々の支払額
- 円
- 購入希望物件価格
-
万円
- 頭金
-
万円
- 金利
-
%
- 返済額(ボーナス1回分)
-
万円
- 返済期間
-
年
物件の特徴
セールスポイント
自然光を取り込みやすい陽当たり良好な明るい住まい♪
初めての住宅購入は『ひだまりハウス』へ、是非ご相談ください! 当社スタッフは明るく、気さくに話せます。家庭を持っている営業スタッフも多く、パパママ世代に寄り添ってご提案させて頂きます。マイホームを持っているスタッフの経験談なども参考にしてみては如何でしょうか?
ポイント
杉戸町内田4丁目 中古一戸建て 東武伊勢崎線 東武日光線 東武動物公園駅 杉戸小学校 杉戸中学校
担当者のコメント
基本情報
設備条件
その他
周辺施設
支払いシミュレーション
※実際の金額と異なる場合があります。
※ボーナスは自動で年2回分で計算されます。
近隣の物件
杉戸町内田4丁目 中古一戸建て
2,750万円
-
4LDK(98.53㎡)






前畑 寿幸
雨の日もお洗濯物が乾かせて便利な浴室暖房換気乾燥機!
2台分のカースペースを完備!家族分のお車を停められます◎
2路線利用可能な東武動物公園駅は電車通勤や通学にも便利♪
【ひだまりハウス 久喜支店】
ヤシの木が目印の店舗♪「地元密着」の不動産屋さんです。
近隣市町村すべての物件がまとめてご見学いただけます!
資料請求や住宅ローン相談だけでも大歓迎です。
お問い合わせは【フリーダイヤル: 0120-888-290】までお気軽にどうぞ♪